1044 Baxter St, Athens GA

Unlock Limitless Possibilities at 1044 BAXTER ST, Athens, GA

Imagine a property that transcends the traditional definition of brick and mortar. Dive deep into the pulse of Athens, where every corner hides potential and every idea finds its canvas.

 

A Property Beyond Brick and Mortar

Dive into the Heart of Athens

Unravel a location that reverberates with energy. Nestled on the lively Baxter Street, the allure of this property extends beyond its physical presence.

Renovated Commercial Jewel

An invitation not just to investors, but to dreamers, visionaries, and passionate entrepreneurs. A space waiting for the right idea to come to life.

Envision the Magic

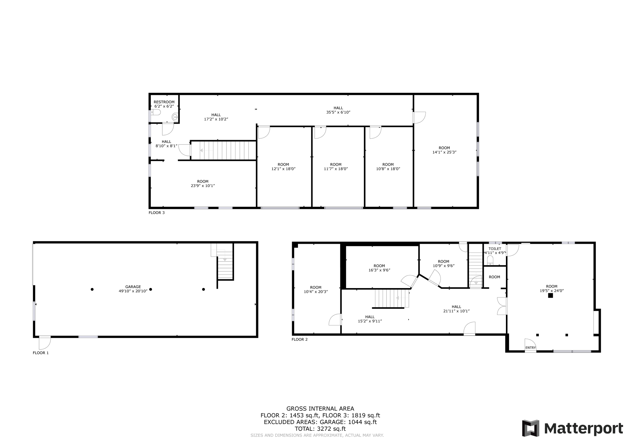
Visualize a sprawling interior, ready to become a co-working haven or an upscale office space. Three rooms on Floor 2 beckon, while potential loading docks hint at logistical convenience. Floor 3 offers five rooms, each an opportunity. Considering retail, dining, or a trendy bar? With the right approvals, make this Athens' next big thing.

Commercial Real Estate schematic Matterport floor plan

3D Virtual Tour | Matterport

  • before renovations



Boundless Business Ventures

Education and Community Haven

With the UGA campus merely 1.3 miles away, the potential is palpable. Picture a boutique dormitory, an educational hub, or even a community center — a place that radiates knowledge and comfort.

Multi-Family Marvel

Think urban. Think stylish apartments or chic lofts. Perhaps businesses on the ground floor and modern residences above? Why not accompany it with a coffee shop, bringing warmth and aroma to the hustle?

Hostel or BnB Dream

Capitalizing on its proximity to the university and downtown, create a haven for travelers. Offer them a snippet of Athens' magic. With potential for a Bed & Breakfast, dream of rooftop gardens for relaxation or intimate lounges echoing with stories.

Basement Potential

The 1,044 sq.ft. basement is nothing short of a blank canvas. Dream of a hip underground bar, visualize a tranquil yoga studio, or showcase local talent with an art gallery.

Connectivity and Convenience

A mere 1.5 miles from Downtown Athens and steps away from Beechwood Shopping Center, this property is strategically placed. Whether students, locals, or tourists, they're all within your grasp.

Fresh Slate Awaiting Your Touch

Recently given a makeover from the inside out. New floors, pristine walls, and a contemporary façade are ready for your personal touch.

Parking Perfection

Space isn't an issue here. With parking for up to 15 vehicles, everyone finds their spot.

Seize the Opportunity on Baxter Street

1044 BAXTER ST isn't just a location; it's where dreams meet reality. It's where visionaries paint their dreams against the vibrant backdrop of Athens.

Conclusion

In the heart of Athens, 1044 BAXTER ST presents an unmatched opportunity. It's a place where dreams get wings, where every idea finds its space, and where the future of Athens might just find its next big landmark.


FAQs

  1. How close is 1044 BAXTER ST to the main attractions of Athens?

    • Just 1.5 miles from Downtown Athens and a short walk to Beechwood Shopping Center.

  2. What's the potential of the basement at 1044 BAXTER ST?

    • The 1,044 sq.ft. basement can be transformed into a bar, yoga studio, art gallery, or any venture that aligns with your vision.

  3. How many parking spaces does the property offer?

    • The property boasts space for up to 15 vehicles.

  4. Has the property been recently renovated?

    • Yes, the property has been renovated from the inside out, featuring new floors, polished walls, and a modern façade.

  5. What business ventures are possible at 1044 BAXTER ST?

    • With the right approvals, possibilities range from co-working spaces, offices, retail, dining, hostels, BnBs, and more.


Property Listing Info

Previous
Previous

HDR vs Flambient Photography for Real Estate

Next
Next

Safeguarding Your Film Vision: CraigFilm’s Verification Process